Architectural
Other Works
Contact
UpWork
Fiverr
PPH
Architectural
Other Works
Contact
UpWork
Fiverr
PPH
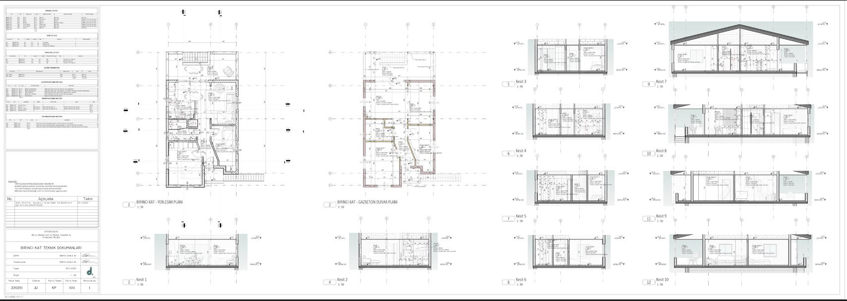
Family House Interior Design Project_A.D. House
Family House Interior Design Project - A.D. House
Ongoing Project...
You may also like
Family House Interior Design Project_T.H.B. House
2022
Wet Space Details
2D drawings and 3D renders
2022
Construction Drawings of an interior Design Project
2022
3D Floor Plans
3D floor plans of Interior design projects
2022
Elementry School
Concept design competition project
2016
Family House Interior Design Project _ A.S.E. House
2022
Single Family House A.M.D.
Design contribution and draft plans of a single-family house with 3D model render and walkthrough video.
2022
Sport Center - Plans
Construction drawings
2017
Sports Center - Mirror
3D modeling and construction drawings
2017
Sport Center - Front Desk
3D modeling and construction drawings
2016
↑
Back to Top