Architectural
Other Works
Contact
UpWork
Fiverr
PPH
Architectural
Other Works
Contact
UpWork
Fiverr
PPH
derya damla idi derya damla idi

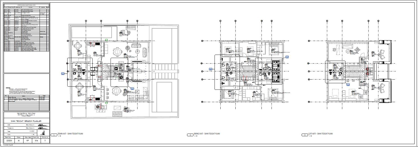
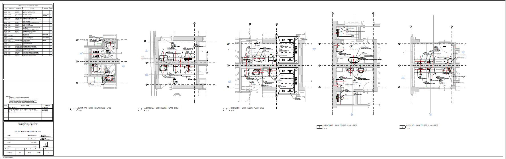
Wet Space Details

2D drawings and 3D renders

You may also like

Office Waiting Area
3D modeling and construction drawings
2019
Elementry School
Concept design competition project
2016
Sport Center - Plans
Construction drawings
2017
Construction Drawings of an interior Design Project
2022
Single Family House A.M.D.
Design contribution and draft plans of a single-family house with 3D model render and walkthrough video.
2022
Family House Interior Design Project _ A.S.E. House
2022
Sports Center - Mirror
3D modeling and construction drawings
2017
Scan to BIM and Design Proposal of a Houses' Wet Spaces
Moodboard and design proposal model of a Houses' Wetspaces reconstruction project that includes LOD300 Scan to BIM model.
2023
Family House Interior Design Project_A.D. House
2022
3D Floor Plans
3D floor plans of Interior design projects
2022
↑Back to Top
*deryadamlaidi