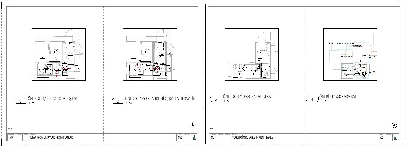
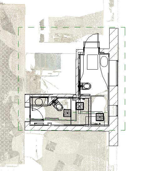
Scan to BIM and Design Proposal of a Houses' Wet Spaces
Moodboard and design proposal model of a Houses' Wetspaces reconstruction project that includes LOD300 Scan to BIM model.
You may also like

Family House Interior Design Project _ A.S.E. House
2022

Dental Clinic
3D modeling and render
2016

Sport Center - Front Desk
3D modeling and construction drawings
2016

3D Floor Plans
3D floor plans of Interior design projects
2022

Construction Drawings of an interior Design Project
2022

Single Family House A.M.D.
Design contribution and draft plans of a single-family house with 3D model render and walkthrough video.
2022

Office Furnitures
3D modeling and construction drawings
2018

Family House Interior Design Project_T.H.B. House
2022

Single Family House E.G.
Design contribution and CD project of a single-family house with 3D model render and Virtual tour for VR included.
2023

Family House Interior Design Project_A.D. House
2022