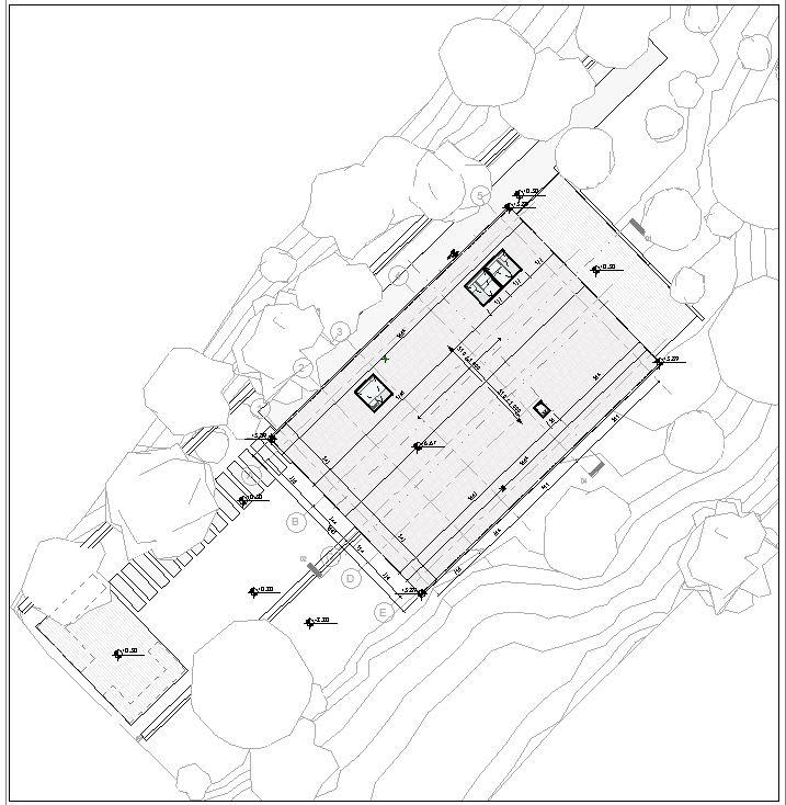
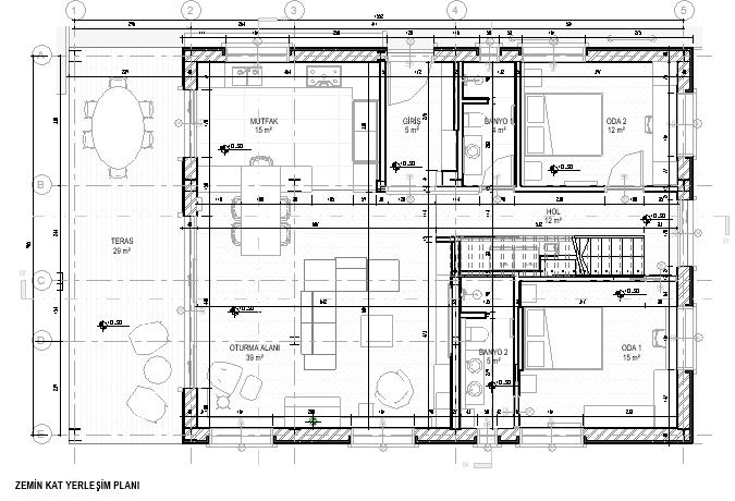
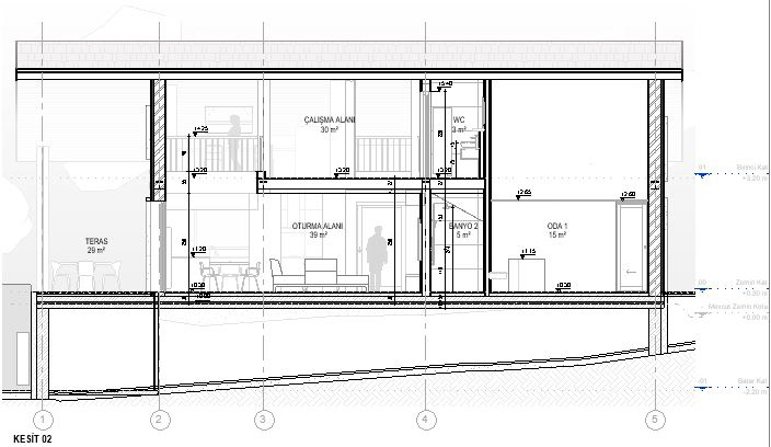
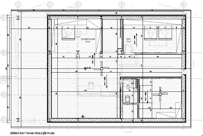
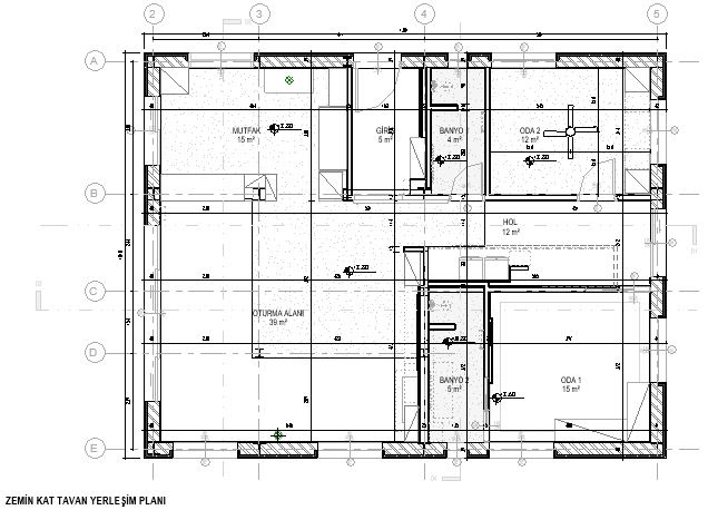
Single Family House E.G.
Design contribution and CD project of a single-family house with 3D model render and Virtual tour for VR included.
You may also like
Sport Center - Plans
Construction drawings
2017
Family House Interior Design Project_T.H.B. House
2022
Scan to BIM and Design Proposal of a Houses' Wet Spaces
Moodboard and design proposal model of a Houses' Wetspaces reconstruction project that includes LOD300 Scan to BIM model.
2023
Family House Interior Design Project _ A.S.E. House
2022
Construction Drawings of an interior Design Project
2022
Single Family House A.M.D.
Design contribution and draft plans of a single-family house with 3D model render and walkthrough video.
2022
Office Waiting Area
3D modeling and construction drawings
2019
Sports Center - Mirror
3D modeling and construction drawings
2017
Elementry School
Concept design competition project
2016
Family House Interior Design Project_A.D. House
2022