Architectural
Other Works
Contact
UpWork
Fiverr
PPH
Architectural
Other Works
Contact
UpWork
Fiverr
PPH
derya damla idi derya damla idi

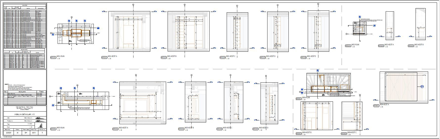
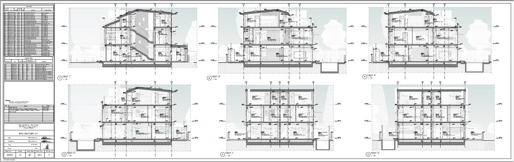
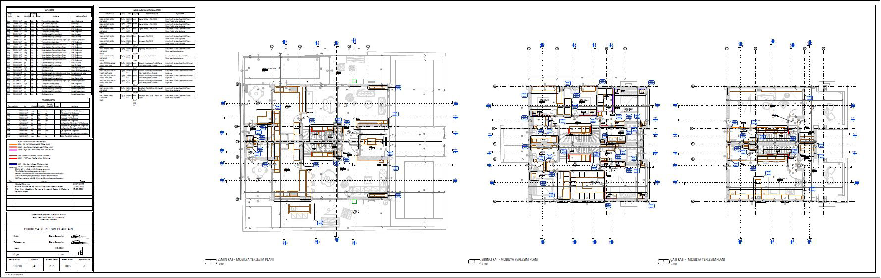
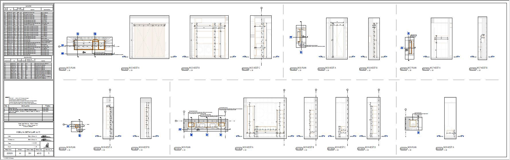
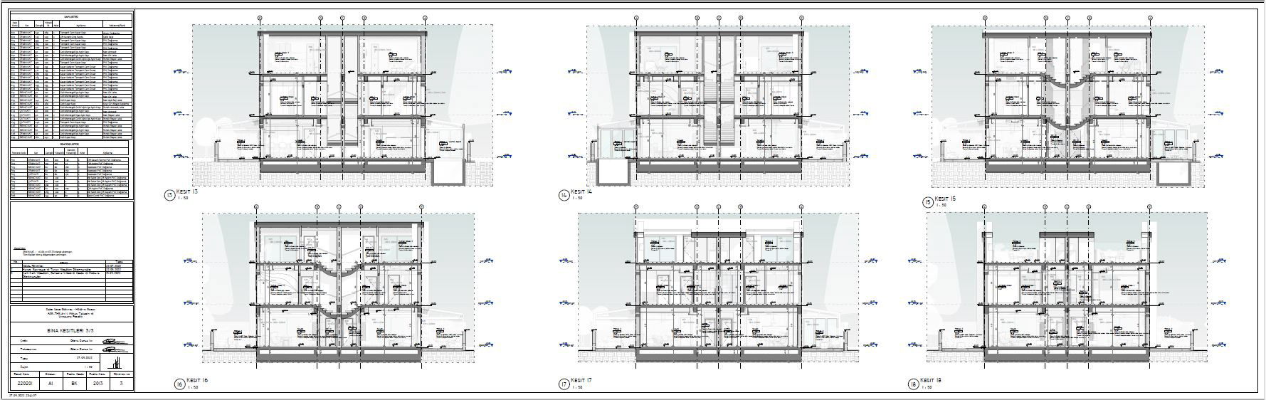
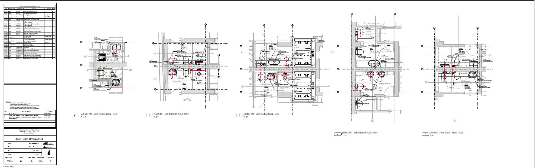
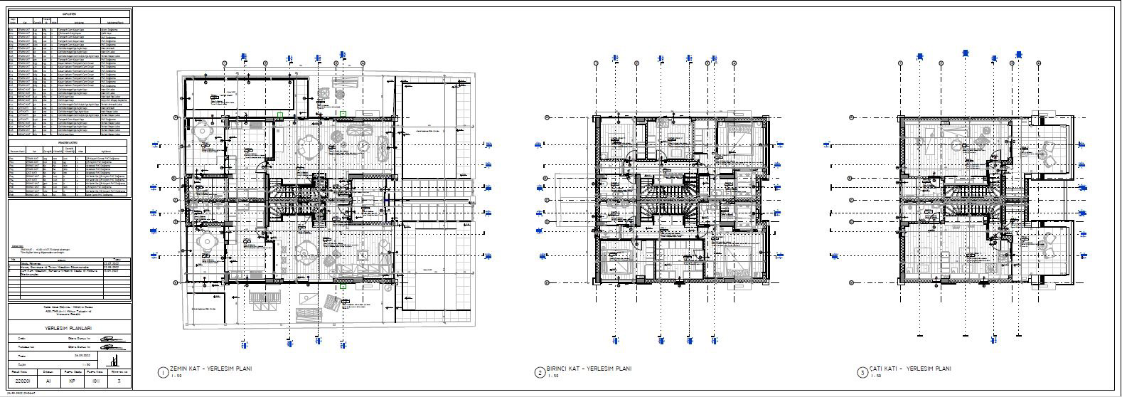
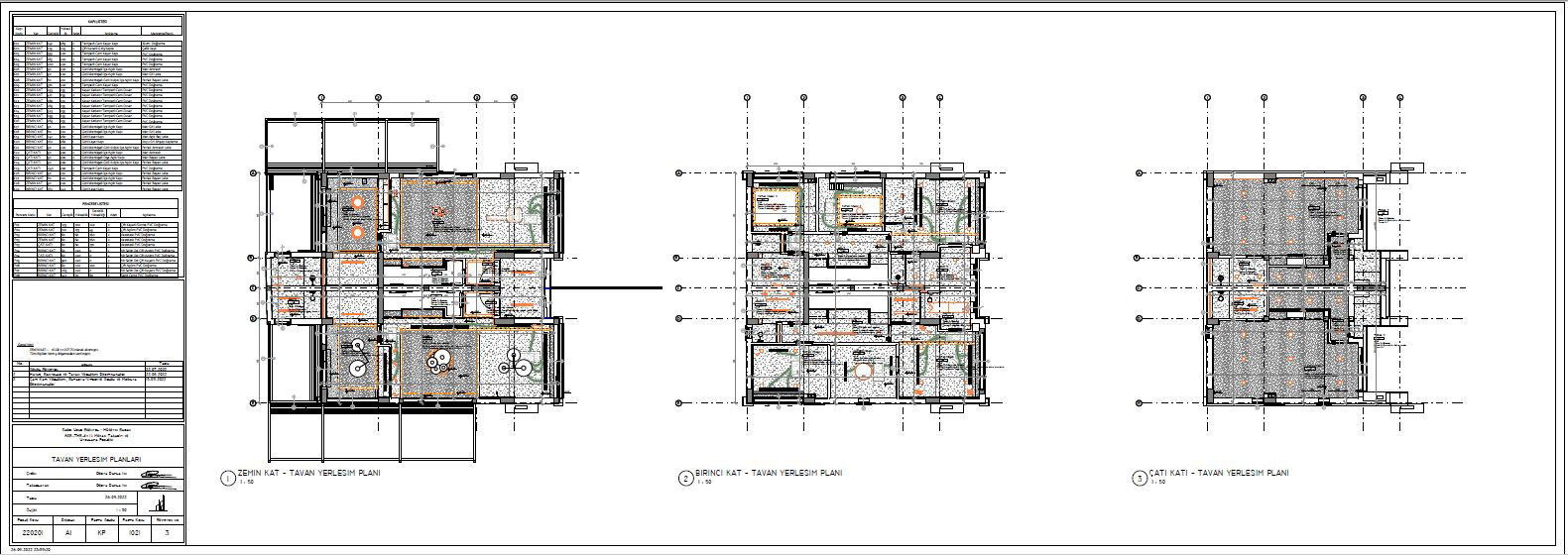
Construction Drawings of an interior Design Project

You may also like

3D Floor Plans
3D floor plans of Interior design projects
2022
Single Family House A.M.D.
Design contribution and draft plans of a single-family house with 3D model render and walkthrough video.
2022
Sport Center - Plans
Construction drawings
2017
Office Furnitures
3D modeling and construction drawings
2018
Sport Center - Front Desk
3D modeling and construction drawings
2016
Single Family House E.G.
Design contribution and CD project of a single-family house with 3D model render and Virtual tour for VR included.
2023
Family House Interior Design Project_A.D. House
2022
Elementry School
Concept design competition project
2016
Family House Interior Design Project_T.H.B. House
2022
Scan to BIM and Design Proposal of a Houses' Wet Spaces
Moodboard and design proposal model of a Houses' Wetspaces reconstruction project that includes LOD300 Scan to BIM model.
2023
↑Back to Top
*deryadamlaidi